Čtyřpístový plošinový zvedák Consul 4.55 MK Quadro SN

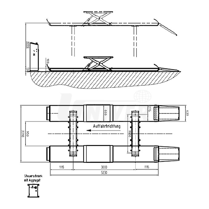
Čtyřpístový hydraulický podpodlažní zvedák s nosností 5,5 t, se 2 plošinami dl. 5 230 mm, šířky 630 mm, vzdáleností mezi plošinami 950 mm a oboustranným přídavným nůžkovým zvedákem 3,5 t.

  • vodicí i opěrný píst tvrdě pochromované
  • elektrohydraulický pohon, externí zvedací jednotka
  • mechanická synchronizace (stejnoběh pístů) v každé zvedací jednotce pomocí příčníku, plus bezpečnostní zařízení
  • synchronizace zvedacích jednotek navzájem řízená počítačem
  • elektrické ovládání s uzavíracím ventilem
  • 2 nosné plošiny se zesíleným profily se sklopnými nájezdy
  • integrovaný oboustranný přídavný nůžkový zvedák s nosností 3500 kg a zdvihem 450 mm
  • 2 instalační kazety s žárově pozinkovaným rámem z profilové oceli
  • volitelně systém automatického vyrovnávání s úrovní podlahy
  • dodává se včetně instalační kazety
  • zkušební plaketa GS, odpovídá normě DIN EN 1493, certifikát CE
  • vynikající provozní spolehlivost, dlouhá životnost, malé nároky na údržbu
  • vysoká kvalita garantovaná renomovaným německým výrobcem

Technické parametry

Nosnost5500 kg / 3500 kg
Vzdálenost pístů1500 / 3000 mm
Zdvihcca 2070 mm
Nájezdová / přejezdová výškacca 130 mm
Nájezdové plošiny - délkacca 4550 mm
Nájezdové plošiny - šířka500 mm
Doba zdvihu / spuštění40 s
Elektromotor400 V / 6,0 kW / 16 A
KrytíIP 54
Přídavný zvedák – nosnost3500 kg
Přídavný zvedák – zdvih450 mm

Objednávka zboží

3310005249750
549667
CONSUL 524975 4-pístový plošinový zvedák 4,55 MK Quadro SN
Kč 950.990,00