Čtyřsloupový zvedák SICE PQC 50 CT LT
Elektrohydraulický čtyřsloupový plošinový zvedák s nosností 5 000 kg je upravený pro měření geometrie kol a má v obou plošinách integrovaný nůžkový zvedák pro přízdvih kol.- vhodný jak pro standardní mechanické práce, tak zejména pro měření / seřizování geometrie kol ve spojení s přístrojem na měření geometrie kol, a to i 3D
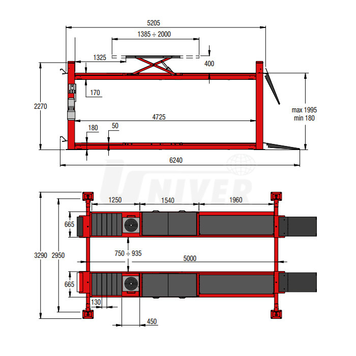
- vzdálenost mezi plošinami lze měnit v rozsahu 750 - 935 mm
- mechanická synchronizace pomocí ocelových lan
- komfortní a bezpečná obsluha s pneumatickým ovládáním a bezpečnostním odblokováním
- veškerá standardní bezpečnostní výbava
- vysoce kvalitní prášková povrchová úprava odolná proti poškrábání
- 2 přídavné nůžkové zvedáky s nosností 4 000 kg pro přízdvih kol / náprav integrované po jednom do obou nosných plošin
- součástí dodávky zvedáku jsou zadní přesuvné plošiny
- připojení stlačeného vzduchu rychlospojkou
- vysoká provozní spolehlivost i při náročném využívání, dlouhá životnost, minimální údržba
- kvalita garantovaná renomovaným italským výrobcem
Technické parametry
| Nosnost | 5000 kg |
|---|---|
| Celková výška | 2270 mm |
| Celková šířka | 3290 mm |
| Celková délka (s nájezdy) | 6240 mm |
| Maximální výška zdvihu | 1960 mm |
| Minimální výška (od podlahy) | 180 mm |
| Délka plošin | 5205 mm |
| Šířka plošin | 665 mm |
| Průjezdná šířka mezi sloupy | 2950 mm |
| Doba zdvihu / spouštění | 40 s / 40 s |
| Elektromotor | 400 V / 2,6 kW |
| Stlačený vzduch | 4 – 10 bar |
| Množství hydraulického oleje | 13 l |
| Hmotnost | 1750 kg |
| Nosnost | 4000 kg |
|---|---|
| Zdvih | 400 mm |
| Délka plošin | 1385 – 2000 mm (nastavitelná) |
| Doba zdvihu / spouštění | 10 s |
obj.č. 0-43104001/15
Cena … Kč 375.990,-
Předepsané příslušenství:
8-43100162 – sada šroubů k ukotvení zvedáku do podlahy … Kč 3.590,-
Volitelné příslušenství:
8-33100102 - sada (2 ks) mechanických otočných plošin (s ROC Push-mode kit, 400 x 450 x 50 mm) … Kč 19.990,-
Objednávka zboží
Tento produkt není možné objednat přes e-shop. V případě Vašeho zájmu nás kontaktujte nebo použijte poptávkový formulář.



