Dvoupístový zvedák Consul 2.40 MKK
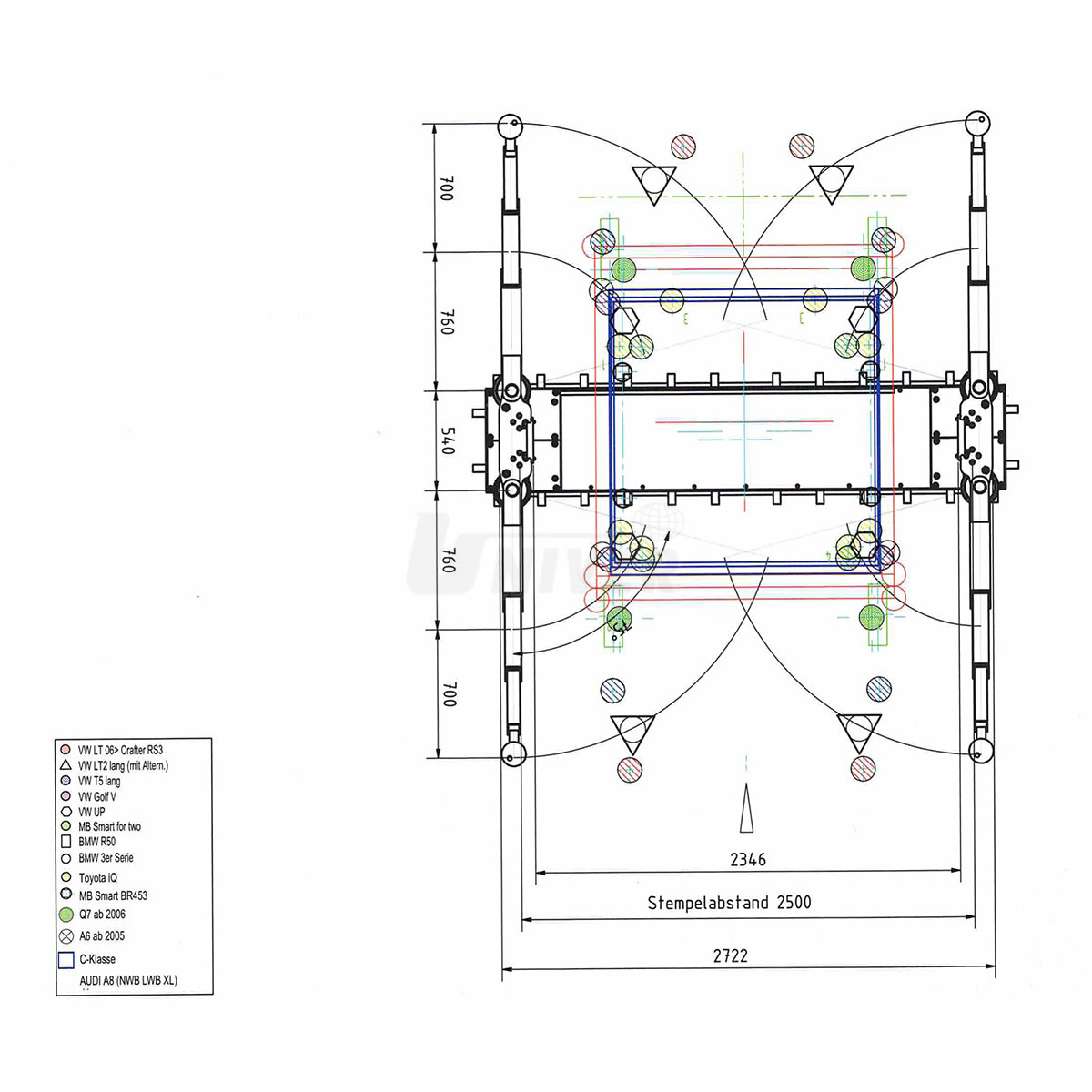
Dvoupístový hydraulický podpodlažní zvedák s nosností 4,0 t, se vzdáleností pístních jednotek 2500 mm, s 3-dílnými otočnými a délkově nastavitelnými nosnými rameny.- nosná část s výkyvnými 3-dílnými rameny, 2-násobně teleskopickými, aretace nosných ramen, nosné talíře z tvrdé gumy a profilem (58586.9)
- vodicí i opěrný píst tvrdě pochromované
- elektrohydraulický pohon, externí zvedací jednotka
- mechanická synchronizace (stejnoběh pístů) pomocí příčníku, plus bezpečnostní zařízení
- synchronizace při spouštění pomocí nastavitelných škrticích ventilů
- elektrické ovládání s uzavíracím ventilem
- připojovací příruba pro trubku DN 100 pro odvětrávání vany a jako trubka připojovacího kabelového vedení
- instalační kazeta s žárově pozinkovaným rámem z profilové oceli je součástí dodávky zvedáku
- kryt vany kompletně žárově zinkovaný
- zkušební plaketa GS, odpovídá normě DIN EN 1493, certifikát CE
- vynikající provozní spolehlivost, dlouhá životnost, malé nároky na údržbu
- vysoká kvalita garantovaná renomovaným německým výrobcem
Technické parametry
| Nosnost | 4,0 t |
|---|---|
| Vzdálenost pístů | 2500 mm |
| Čistý zdvih | 1900 mm |
| Průměr pístu | 2 × 110 mm |
| Spodní výkyvná výška | cca 131–185 mm |
| Rozsah nosných ramen | cca 760–1460 mm |
| Doba zdvihu / spuštění | 40 s |
| Pracovní tlak | 150 bar |
| Množství oleje | 20 l |
| Elektromotor | 400 V / 3,3 kW / 16 A |
| Krytí | IP 54 |
Volitelné příslušenství:
565945 - distanční objímky (4 ks) pro nosná ramena X/Multi dl. 100 mm
641100 - distanční objímky (4 ks) pro nosná ramena X/Multi dl. 12 mm
565952 - distanční objímky (4 ks) pro nosná ramena X/Multi dl. 150 mm
565960 - distanční objímky (4 ks) pro nosná ramena X/Multi dl. 200 mm
397349 - distanční objímky (4 ks) pro nosná ramena X/Multi dl. 35 mm
565937 - distanční objímky (4 ks) pro nosná ramena X/Multi dl. 50 mm
462226 - hydraulický olej (HLP22), plastová nádoba 5 l, vhodný pro všechny zvedáky Consul
366476 - sada (2 ks) přídavné nosné podložky pro terénní vozidla
Objednávka zboží
3310005659450
565945
565945
CONSUL 565945 Distanční objímky (4 ks) pro nosná ramena dl. 100 mm
na objednávku
na objednávku
Kč 9.890,00
3310006411000
641100
641100
CONSUL 641100 Distanční objímky (4 ks) pro nosná ramena dl. 12 mm
na objednávku
na objednávku
Kč 2.390,00
3310005659520
565952
565952
CONSUL 562952 Distanční objímky (4 ks) pro nosná ramena dl. 150 mm
na objednávku
na objednávku
Kč 10.990,00
3310005659600
565960
565960
CONSUL 565960 Distanční objímky (4 ks) pro nosná ramena dl. 200 mm
na objednávku
na objednávku
Kč 11.090,00
3310003973490
397349
397349
CONSUL 397349 Distanční objímky (4 ks) pro nosná ramena dl. 35 mm
na objednávku
na objednávku
Kč 7.790,00
3310005659370
565937
565937
CONSUL 565937 Distanční objímky (4 ks) pro nosná ramena dl. 50 mm
na objednávku
na objednávku
Kč 8.790,00
3310003664760
366476
366476
CONSUL 366476 Přídavné nosné podložky pro terénní vozy (2 ks)
na objednávku
na objednávku
Kč 7.090,00





