Dvoupístový zvedák Consul 2.55 MKK
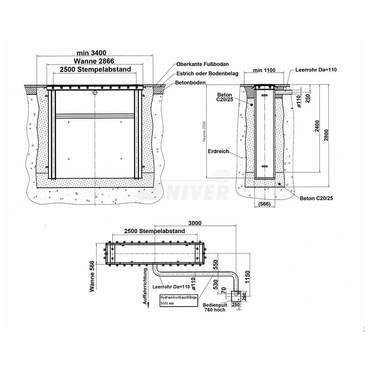
Dvoupístový hydraulický podpodlažní zvedák s nosností 5,5 t, se vzdáleností pístních jednotek 2500 mm, s volitelnou horní nosnou částí se 4-dílnými otočnými a délkově nastavitelnými nosnými rameny.- vodicí i opěrný píst tvrdě pochromované
- elektrohydraulický pohon, externí zvedací jednotka
- mechanická synchronizace (stejnoběh pístů) pomocí příčníku, plus bezpečnostní zařízení
- synchronizace při spouštění pomocí nastavitelných škrticích ventilů
- elektrické ovládání s uzavíracím ventilem
- připojovací příruba pro trubku DN 100 pro odvětrávání vany a jako trubka připojovacího kabelového vedení
- instalační kazeta s žárově pozinkovaným rámem z profilové oceli je součástí dodávky zvedáku
- kryt vany kompletně žárově zinkovaný
- zkušební plaketa GS, odpovídá normě DIN EN 1493, certifikát CE
- vynikající provozní spolehlivost, dlouhá životnost, malé nároky na údržbu
- vysoká kvalita garantovaná renomovaným německým výrobcem
Technické parametry
| Nosnost | 5,5 t |
|---|---|
| Vzdálenost pístů | 2500 mm |
| Čistý zdvih | 1990 mm |
| Průměr pístu | 2 × 130 mm |
| Doba zdvihu / spuštění | 45 s |
| Pracovní tlak | 150 bar |
| Množství oleje | 20 l |
| Elektromotor | 400 V / 3,3 kW / 20 A |
| Krytí | IP 54 |
Základní dvoupístovou jednotku 590091 je nutné doplnit volitelnými nosnými rameny:
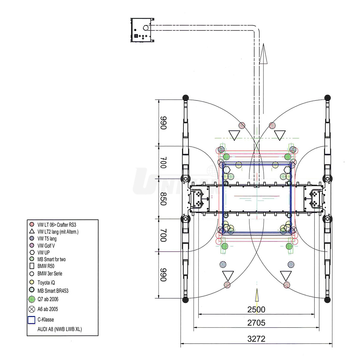
659508 - nosná část s výkyvnými 4-dílnými rameny, 3-násobně teleskopickými, aretace nosných ramen, nosné talíře z tvrdé gumy a profilem
Nosnost 5,5 t, výška zdvihu cca 2185 mm, spodní výkyvná výška cca 100 mm, rozsah nosných ramen cca 700 – 1690 mm.
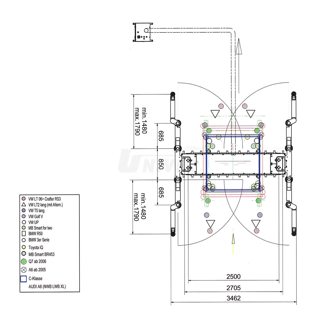
572768 - nosná část s výkyvnými 4-dílnými rameny, 3-násobně teleskopickými, navíc opatřenými klouby, aretace nosných ramen, nosné talíře z tvrdé gumy a profilem
Nosnost 5,5 t, výška zdvihu cca 2185 mm, spodní výkyvná výška cca 120 mm, rozsah nosných ramen cca 795 – 1790 mm.
Volitelné příslušenství:
561514 - distanční objímky (4 ks) pro nosná ramena X/Multi dl. 100 mm
641118 - distanční objímky (4 ks) pro nosná ramena X/Multi dl. 12 mm
561357 - distanční objímky (4 ks) pro nosná ramena X/Multi dl. 150 mm
566018 - distanční objímky (4 ks) pro nosná ramena X/Multi dl. 200 mm
561498 - distanční objímky (4 ks) pro nosná ramena X/Multi dl. 50 mm
462226 - hydraulický olej (HLP22), plastová nádoba 5 l, vhodný pro všechny zvedáky Consul
Objednávka zboží
3310005615140
561514
561514
CONSUL 561514 Distanční objímky (4 ks) pro nosná ramena dl. 100 mm
na objednávku
na objednávku
Kč 10.280,00
3310006411180
641118
641118
CONSUL 641118 Distanční objímky (4 ks) pro nosná ramena dl. 12 mm
na objednávku
na objednávku
Kč 2.460,00
3310005613570
561357
561357
CONSUL 561357 Distanční objímky (4 ks) pro nosná ramena dl. 150 mm
na objednávku
na objednávku
Kč 13.490,00
3310005660180
566018
566018
CONSUL 566018 Distanční objímky (4 ks) pro nosná ramena dl. 200 mm
na objednávku
na objednávku
Kč 13.600,00
3310005614980
561498
561498
CONSUL 561498 Distanční objímky (4 ks) pro nosná ramena dl. 50 mm
na objednávku
na objednávku
Kč 9.250,00





