Dvousloupový zvedák UNIVER DSZ 5.0 TA
Elektrohydraulický dvousloupový asymetrický zvedák pro osobní a lehké nákladní automobily s nosností 5 000 kg, s nízkým prahem.- nízký spojovací práh na podlaze mezi sloupy
- šířka zvedáku je zvolena tak, aby mezi sloupy byl dostatečný prostor pro pohodlnou práci, ale aby zvedák nezabíral zbytečně mnoho místa a umožňoval vytváření racionálních sestav
- asymetrická, variabilně nastavitelná nosná ramena (výsuvná a kloubově natáčecí) s automatickou aretací polohy jejich natočení, snadno tak lze dosáhnout zvedací body u menších i velkých automobilů
- výškově nastavitelné nosné podložky na ramenech, které mají vrchní plochu ze speciální pryže s optimálním designem
- ve zvolené pracovní poloze jsou pojezdové bloky s nosnými rameny aretovány bezpečnostními západkami, takže hydraulika zvedáků není zatěžována
- odjištění aretačních západek je ovládané elektromagneticky, což odpovídá moderním požadavkům na komfort obsluhy
- synchronizace nezávislá na zatížení s mechanickým vyrovnávacím systémem
- ovládací napětí 24 V
- vysoká úroveň bezpečnostního zajištění, včetně ventilů chránících před přetížením, kontroly rychlosti spouštění atd.
- kvalitní, osvědčená, spolehlivá hydraulika s komponenty z leteckého průmyslu, kompaktní hydraulický agregát, tichý chod
- vynikající provozní spolehlivost i při náročném využívání
- dlouhá životnost jen s minimálními nároky na údržbu
- konstrukční provedení splňuje náročné normy EU a CE
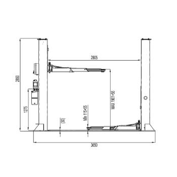
Technické parametry
| Nosnost | 5000 kg |
|---|---|
| Maximální výška | 1900 mm |
| Minimální výška | 120 mm |
| Celková výška | 2850 mm |
| Průjezdná šířka mezi sloupy | 2500 mm |
| Doba zdvihu | 60 s |
| Napájení | 400 V / 2,6 kW / 50 Hz |
| Hmotnost | 950 kg |
Objednávka zboží
8469000000340
Z23A6011200
Z23A6011200
TAIDA Z23A601200 H.80 Sada 4 ks prodlužovacích adaptérů (80 mm)
Kč 1.430,00
8469000000341
Z23A6011300
Z23A6011300
TAIDA Z23A601300 H.155 Sada 4 ks prodlužovacích adaptérů (155 mm)
Kč 1.950,00




