Elektrohydraulické jámové zvedáky JZ-EH / JZ-EH-E1
Elektrohydraulické jámové zvedáky pro těžší motorová vozidla (příp. jejich agregáty).- elektrohydraulické jámové zvedáky ve standardním provedení s odděleným hydraulickým agregátem nebo s hydraulickým agregátem na zvedáku s nosností 10 t až 20 t a zdvihem 800 mm
- osvědčené použití především v autoopravnách nebo STK s větším počtem zdvihů vozidel, jinak se zpravidla upřednostňují ruční hydraulické jámové zvedáky
- patky jámových zvedáků mají po stranách zaoblené vybrání pro lepší stabilitu zvedané nápravy
- kladky pojezdu a zvedáku jsou osazeny ložisky pro snadné pojíždění po montážní jámě
- rozvody hydraulického oleje v montážní jámě se provádí dle přání zákazníka jako: a) vysokotlaké hydraulické hadice - zavěšené na stěně montážní jámy pomocí lanka,
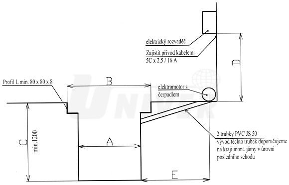
- montážní jáma musí být zhotovena dle normy ČSN 736059 a po celé délce opatřena pojezdovou dráhou z L profilu minimálních rozměrů 80 x 80 x 8 mm
- el. rozvaděč má rozměry 330 x 300 x 120 (výška x šířka x hloubka)
- elektromotor s čerpadlem má 2 provedení (výška x šířka x délka): horizontální 280 x 200 x 900 mm a vertikální 640 x 305 x 255 mm
- vysoká kvalita, provozní spolehlivost a dlouhá životnost
- česká výroba
b) pozinkované hydraulické trubky s rychlospojkami
Při objednávání jámových zvedáků je třeba do objednávky uvést:
A - světlá šířka montážní jámy
B - rozměr pro pojezd jámového zvedáku nebo velikost L profilu, případně jiného profilu (U)
C - hloubka montážní jámy
X - délka montážní jámy
D - vzdálenost el. rozvaděče od podlahy (el. rozvaděč doporučujeme umístit cca 1500 mm nad podlahu a pod něj elektromotor v úrovni schodů do montážní jámy)
E - vzdálenost elektromotoru od stěny k montážní jámě

Elektrohydraulické jámové zvedáky s odděleným hydraulickým agregátem
JZ-EH 10/800 (10 000 kg) ... Kč 101.750,-
JZ-EH 12/800 (12 000 kg) ... Kč 107.180,-
JZ-EH 15/800 (15 000 kg) ... Kč 119.945,-
JZ-EH 20/800 (20 000 kg) ... Kč 132.595,-
Cena montáže ... Kč 5.750,-
Elektrohydraulické jámové zvedáky s hydraulickým agregátem na zvedáku
JZ-EH-E1 13/800 (13 000 kg) ... Kč 119.485,-
JZ-EH-E1 15/800 (15 000 kg) ... Kč 129.030,-
JZ-EH-E1 20/800 (20 000 kg) ... Kč 142.370,-
Cena montáže ... Kč 2.875,-


Volitelné příslušenství:
Příčný posuv zvedáku pomocí pastorku a ozubeného hřebene ... Kč 20.585,-

Brzda zvedáku / brzdový mechanismus ... Kč 9.660,-

TR 8-1908x108 příčná traverza, nosnost 8 t, délka 1908 mm, výška 108 mm ... Kč 19.780,-

TR 10-1000x115 příčná traverza, nosnost 10 t, délka 1000 mm, výška 115 mm ... Kč 15.570,-

TR 5-3000x100 příční traverza pro trolejbusy SOLARIS, nosnost 5 t ... Kč 62.560,-

TR/P 800 / přípravek na jámový zvedák pro montáž převodovky ... Kč 29.440,-

TR/P 1000 SC / přípravek na jámový zvedák pro montáž převodovky Scania ... Kč 33.120,-

PDMF-PČ-SC / přípravek na demontáž filtru pevných částic Scania ... Kč 33.120,-
TRAVERZA MAHA 8t / příčná traverza, nosnost 8 t ... Kč 81.075,-
PS 100 / podpěrný stojan ... Kč 24.150,-

JZ-10t / podpěrný systém ... Kč 30.590,-

U-TRAVERZA 65 / nosnost 10 t, délka 810-930 mm, šířka 170 mm, výška 65 mm ... Kč 11.040,-
U-TRAVERZA 65 G / nosnost 10 t, délka 810-930 mm, šířka 170 mm, výška 65 mm + gumová podložka ... Kč 13.915,-
Traverza TR 11 MB ACTROS / příčná traverza, nosnost 11 t, délka 820-1150 mm ... Kč 28.520,-

Sada nástavců / nástavce pro TR 11 ACTROS ... Kč 4.485,-
Objednávka zboží
Tento produkt není možné objednat přes e-shop. V případě Vašeho zájmu nás kontaktujte nebo použijte poptávkový formulář.

