Jednosloupový zvedák UNIVER JSZ 2.5 NP

Elektrohydraulický jednosloupový zvedák pro použití jako stabilní nebo mobilní i ve venkovním prostředí s nosností 2500 kg a s komfortním elektromagnetickým odjištěním západek.

  • osvědčená konstrukce v souladu s evropskou normou ČSN EN1493 (270809)
  • spolehlivá hydraulika
  • zabírá minimální prostor
  • stabilní nosný sloup a 4 nastavitelná/výsuvná nosná ramena s automatickou aretací polohy jejich nastavení na vertikálně se po sloupu pohybující jednotce
  • výškově stavitelné nosné patky se závity
  • automatická aretace západek
  • komfortní, automatické elektromagnetické odjišťování bezpečnostních západek
  • mechanické zabezpečení proti nežádoucímu spuštění
  • bezpečnostní ventil proti přetížení
  • ventil kontroly rychlosti spouštění
  • ochranný ventil při přerušení hydraulického okruhu
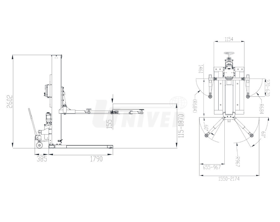
  • asymetrická, variabilně nastavitelná, dvoustupňová krátká i dlouhá nosná ramena s automatickou aretací polohy jejich natočení, snadno tak lze dosáhnout zvedací body u menších i velkých automobilů
  • aretace výšky zdvihu v požadované poloze pomocí automatických mechanických západek
  • odjištění aretačních západek je ovládané manuálně
  • řada bezpečnostních a provozních prvků, např. ventily bránící přetížení, kontrola rychlosti spouštění apod.
  • na každém z ramen bezpečnostní ochrana nohou
  • pryžové elementy chránící dveře vozidla před poškozením
  • spolehlivý, ekonomický provoz s naprosto nenáročnou údržbou

Technické parametry

Nosnost2500 kg
Maximální zdvih1870 mm
Minimální zdvih115 mm
Celková výška2602 mm
Krátká ramena370 – 670 mm
Dlouhá ramena655 – 967 mm
Napájení400 V / 50 Hz
Elektromotor1,5 kW
KrytíIP 54
Hmotnost900 kg

Objednávka zboží

8474000002550
JSZ 2.5 NP
JSZ 2.5 NP Jednosloupový zvedák 2,5t
Kč 81.990,00